AGNI-CCの焚きつけのポイント
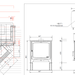
国産唯一の鋳物製の薪ストーブ岡本のAGNI-CCは、国産らしい精度や質感の高さを感じられる、満足度の高い機種だ。 触媒で排気を綺麗にし...
国産唯一の鋳物製の薪ストーブ岡本のAGNI-CCは、国産らしい精度や質感の高さを感じられる、満足度の高い機種だ。 触媒で排気を綺麗にし...
室内側の煙突が、断熱材が入ってないシングル煙突で施工事例はかなり多い。 シングル煙突の問題は、排気温度が下がってしまうことだ。 ...
先日、ハンターストーブのヘラルド14を設置工事したお客様のところで、「炉台の温度が高くなるのが気になる」ということで、その対策を考えた。 ...
古民家リフォームの家に薪ストーブを2台設置するという現場だけど、12月半ば位を目途にようやく具体的な動きが見えてきた。 当初の予定では...
当店で薪ストーブ、煙突工事をしたお客様からのイベント告知情報だ。 これから薪ストーブの導入を考えている人は、直接、先輩ユーザーから薪集...
4月の新築工事中に搬入設置した、オランダ製のアルテック社のソープストーン製の薪ストーブ「ビジョンクック」。いよいよ入居後にの冬が到来して、寒...
普段の薪の配達は、提携先に依頼しているが、工事の合間で、たまたま時間が取れるタイミングだったので、久しぶりに薪の配達に行ってきた。 ...
店に置いてある薪ストーブの実演展示機は、中古の格安販売品として放出するタイミングで時々入れ替えている。 もう半年位前に1台放出してから...
昨日の記事では、薪ストーブのある民泊を紹介したけど、社会福祉施設で薪ストーブを導入しているところもある。 従業員やオーナーさんの中で、...
民泊施設のオーナーから、薪ストーブが壊れてしまったので、見に来て欲しいという依頼が入った。 建物の広さや断熱性能の対して、能力不足の小...